Den Bosch (Orthen west) - Orthen
2-kamer appartement
52 m2
€ 1030 per maand
Details
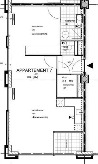
In Den Bosch is een 2-kamer appartement uit 1999 te huur. De woning heeft een oppervlakte van 52 m2 en bestaat uit 2 kamers. De huurprijs bedraagt € 1030 per maand. De servicekosten bedragen € 50 per maand. De borgsom bedraagt 2 maanden huur. Beschikbaarheid: 1 januari 2026.
Meer woningen
Deze woning was beschikbaar tot 16 december 2025.
Mocht u het actuele huurwoningaanbod willen zien, schrijft u zich dan in.
| Algemene informatie | |
|---|---|
| Plaats: | Den Bosch |
| Provincie: | Noord-Brabant |
| Wijk: | Noord |
| Buurt: | Orthen west |
| Type woning: | 2-kamer appartement |
| Oppervlakte: | 52 m2 |
| Aantal kamers: | 2 |
| Aantal slaapkamers: | 1 |
| Aantal badkamers: | 1 |
| Postcode: | 5231XS |
| Straatnaam: | Orthen |
| Bouwjaar: | 1999 |
| Huisdieren: | Niet toegestaan |
| Beschikbaar vanaf: | 01-01-2026 |
| Stoffering: | Gestoffeerd |
| Financiële informatie | |
|---|---|
| Huurprijs: | € 1030 per maand (exclusief) |
| Servicekosten: | € 50 per maand |
| Borgsom: | 2 maanden huur |
| Eigenschappen woonruimte |
|---|
| Lift |
| Dakterras |
| Energielabel A+ |
| Eigenschappen omgeving |
|---|
| Nabij winkels |





