Bussum (Raadhuisplein) - Brinklaan
4-kamer appartement
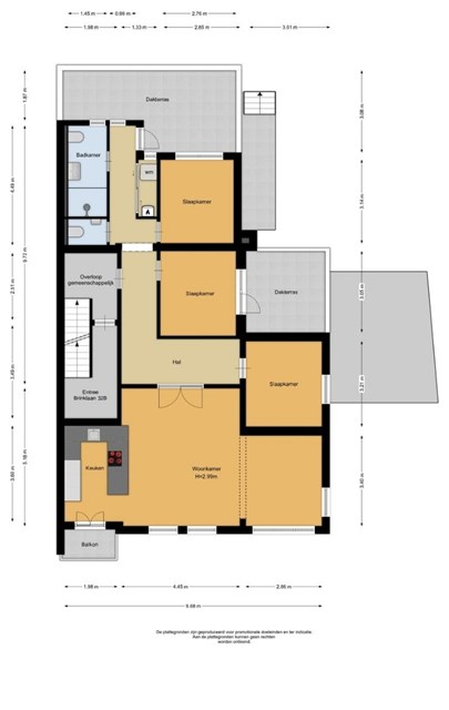
100 m2
€ 2800 per maand
Details
In Bussum is een 4-kamer appartement uit 1896 te huur. De woning heeft een oppervlakte van 100 m2 en bestaat uit 4 kamers. De huurprijs bedraagt € 2800 per maand. De servicekosten bedragen € 85 per maand.
Meer woningen
Deze woning was beschikbaar tot 3 oktober 2025.
Mocht u het actuele huurwoningaanbod willen zien, schrijft u zich dan in.
| Algemene informatie | |
|---|---|
| Plaats: | Bussum |
| Provincie: | Noord-Holland |
| Wijk: | Bussum Centrum |
| Buurt: | Raadhuisplein |
| Type woning: | 4-kamer appartement |
| Oppervlakte: | 100 m2 |
| Aantal kamers: | 4 |
| Aantal slaapkamers: | 3 |
| Aantal badkamers: | 1 |
| Postcode: | 1404EW |
| Straatnaam: | Brinklaan |
| Bouwjaar: | 1896 |
| Huisdieren: | Niet toegestaan |
| Staat van onderhoud: | Gerenoveerd |
| Beschikbaarheid: | in overleg |
| Periode: | Voor onbepaalde tijd |
| Stoffering: | Gedeeltelijk gestoffeerd |
| Financiële informatie | |
|---|---|
| Huurprijs: | € 2800 per maand (exclusief) |
| Servicekosten: | € 85 per maand |
| Eigenschappen woonruimte |
|---|
| Balkon |
| Dakterras |
| Berging |
| Airco |
| Vloerverwarming |
| CV |
| Eigen parkeerplaats |
| Warmtepomp |
| Eigenschappen omgeving |
|---|
| Nabij winkels |
| Nabij openbaar vervoer |
| Nabij horeca |
| Voorwaarden woonruimte |
|---|
| Niet geschikt voor woningdelers |






